
【寰宇天下】在溫潤與理性的交融間遨游

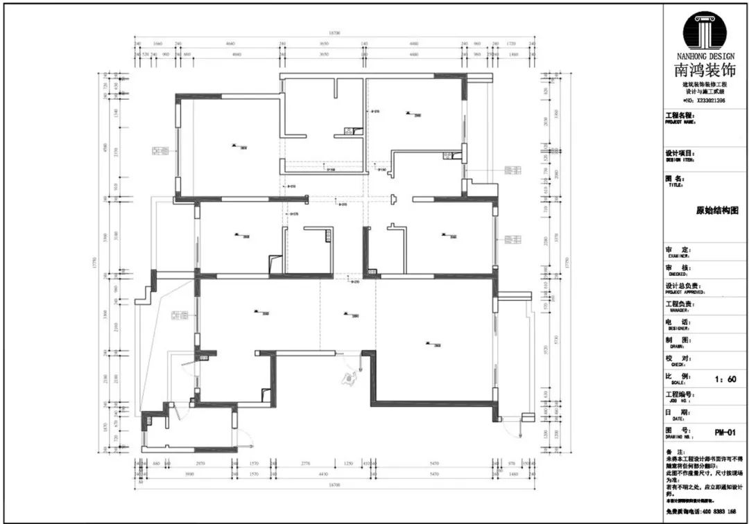
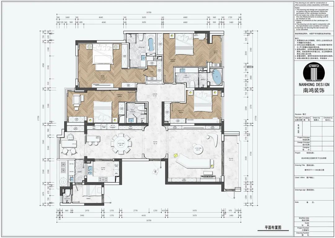
項目信息 / 地址:寰宇天下 城市:中國 杭州 戶型:大平層 面積:267㎡ 風格:現代 設計施工:浙江南鴻裝飾 本案是一套大平層私宅設計,設計師以業主青睞的現代風格為主旨打造空間,選用大量清水胡桃實木的木作與輕奢感石材搭配,通過線條、材質、色彩和光線的組合,將每一塊區域利用合理、構建得當,滿足了業主對家的所有美好期待。 【戶型解析】 原始戶型優勢在于客廳以及每個房間的采光面大,加上房子位于江邊,景觀很好;缺點就是保姆房以及生活陽臺所在區域的動線不好,客臥也過小。 設計改動: 主要對衛生間以及生活陽臺做了優化。公共衛生間擴大增加浴缸功能;去除一個客衛使客臥面積增大、儲物增加;餐廳外部陽臺做成書房,改變去生活陽臺的動線,使中廚區域更加整體等。 作為生活中高頻活動的區域,客廳主以沉穩、大氣、耐看為特質展開。陽光涌入,將室內環境推至繽紛遐想之中。低飽和度的中性色調為空間鋪墊了柔和氣質,頂部無主燈的設計盡顯簡潔,讓人從心底便感受到愜意舒適。 磨砂皮的弧度沙發與大理石電視背景墻的組合,為空間披上了輕奢的格調,層次有序遞進而不乏雅致的高級感。 恰是人間煙火氣,最是溫暖人心。家中的餐食區設計,不僅養胃,更要養心。兩側樸素的儲物柜收納,將功能與形式糅合得完善統一。 靠近半開放式書房一側添置了島臺,打造出便利的西廚區,作為功能補充,與餐廳、廚房一道共構成有機的整體。 書房干凈利落的裝飾,有助于讓使用者平穩心境、專心工作。休閑椅背后是通透的立體收納柜,用燈帶輔助照明,顯現從容氣派。在這里既可以茶會友,亦可看書、辦公,獨享一室寧靜。 統一的胡桃木材質木作貫穿室內,塑造溫潤、理性的氣質。頂部以彎折的線條延伸視覺,也豐富了場所的外部形態。 主臥用深度的灰色調烘托出平靜而舒緩的氛圍,在剔除繁雜的裝飾之后,凝練于材質之上的精氣神得到自然顯現。夜幕降臨時拉上簾子,就此安然浸于好夢之中。 男孩房加入了酷酷的深藍色,背景墻的線條與收納柜無縫銜接,聯為一體,井然有序。落地窗納入屋外江景,自然的清麗足可以喚醒內心最美好的感知。 衛浴空間特意用了多種個性磚來做出拼花的效果,視覺上瑰麗又有趣,豐富的紋理勾勒出層層意蘊。













下一篇:報告:我想鋪地板!好看的地板!
免費
免費申請戶型規劃
專屬設計師免費1對1全程服務
已經有3757人申請
24小時免費咨詢電話
400-8800-618
你家預算
108080元