
【璟宸府】留白+原木,打造自然感氧氣居室!

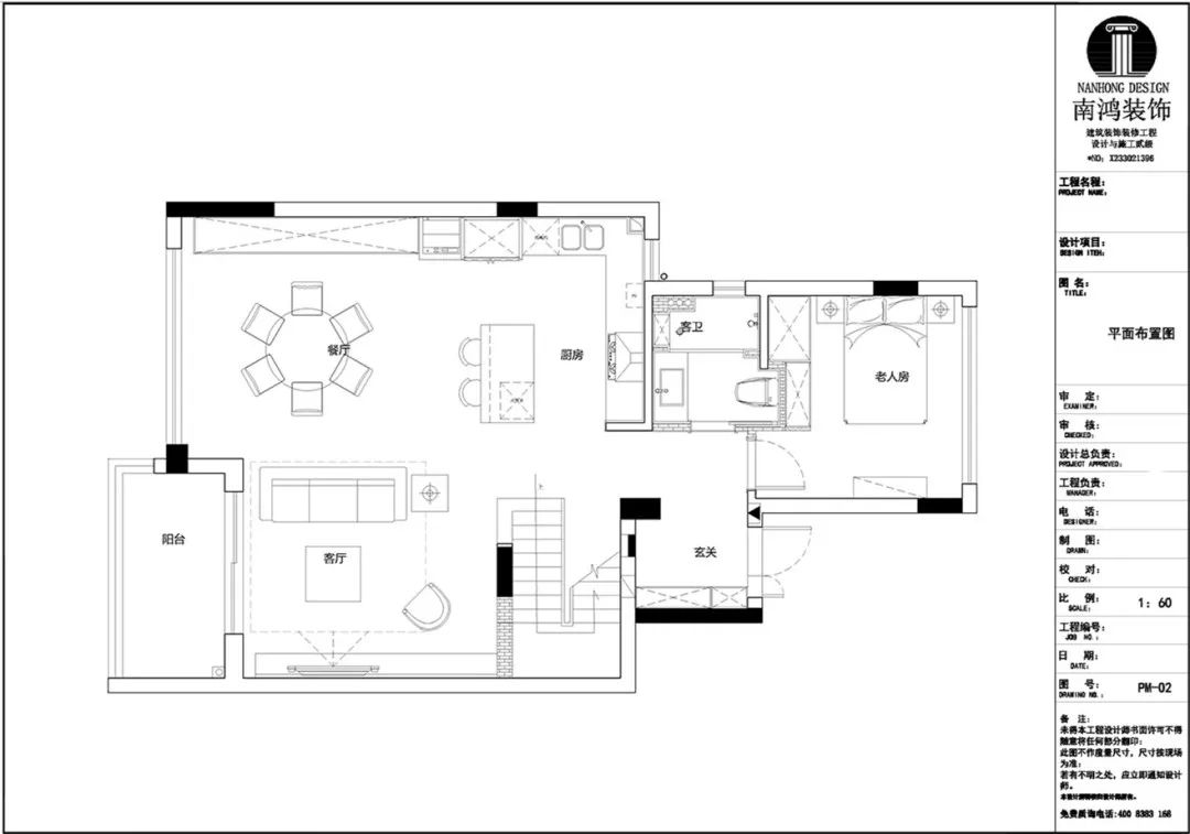
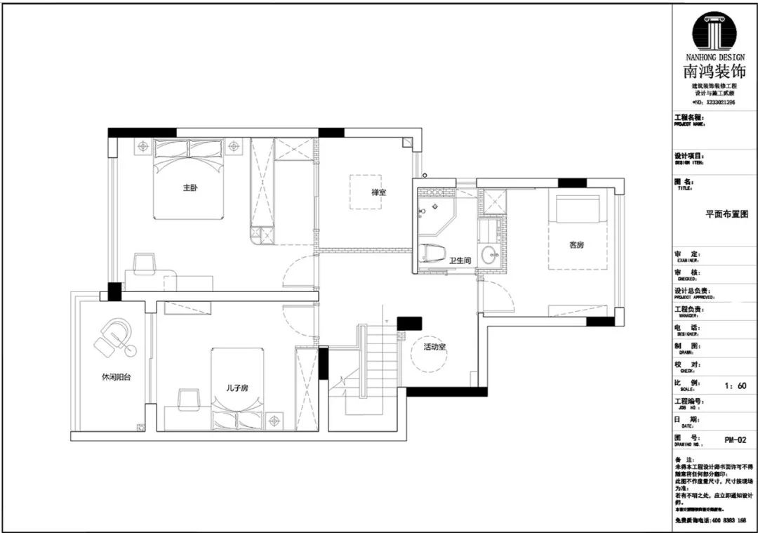
項目信息 / 地址:璟宸府 城市:中國 杭州 戶型:復式 面積:160㎡ 風格:現代原木 設計施工:浙江南鴻裝飾 本案選擇了白、灰、原木等包容性強的顏色作主基調,簡單又有層次的裝飾元素,將設計所要表達的本真情懷展現得充分。清爽利落的明朗視野,深淺色彩的和諧搭配,構造出靜謐優雅的質感美學。 #項目戶型 設計改動 / ?餐廚做開放式設計,寬闊空間帶來更強的互動體驗。 ?廚房加入島臺,實用性更強。 ?樓梯用深色的臺步與墻面形成反差,并在臺階下留出白色小窄條,緩解空間沉悶。 ?臥室內原書房改造為開放式衣帽間,純色無拉手提升柜子的顏值與格調。 No.1 客廳 自由開放的客餐廚一體式布局,將區域間的邊界抹除,強化家人的情感交流,豐富居者的生活方式。 軟裝上選擇素色沙發搭配深色玻璃質感茶幾,氣質低調內斂。 平實的頂面做無主燈設計,背景墻則整體留白,干凈的底色不染纖塵,懸浮的體塊增強空間通透感,整體的調性高度統一。 設計用最簡潔純凈的氣質,給予了居室當下生活所最需的治愈能量。 屋主平時還有養魚的愛好,設計師便將相應設備嵌入到電視側面的墻體中,剛好能做一個趣味的小景。 No.2 餐廳 餐廳做整面的原木柜增加公區收納,柜體延伸至廚區,視線連貫性強,整體的動線和功能設計也更為合理。 圓桌的形式可以節省空間,而純白色的外形相比一般的巖板餐桌來說,也更能烘托恬靜的氛圍。 No.3 廚房 開放式廚房選擇了灰色的百搭調,廚電嵌入柜體,呈現整潔優雅的質感。 島臺也成為了餐廳與廚房的連接點,延續用餐功能的同時,又加強了廚房和餐廳的聯系。 整體色系用咖色、木色和簡約的灰色做搭配,沉穩且耐看。 No.4 樓梯 樓梯使用深色的踏步,與墻面就有了一個反差,讓空間不會顯得單調。 另外,設計師在踏步下也進行了留白,再搭配玻璃材質扶手,為空間留足了呼吸感。 No.5 主臥 主臥保持素雅的搭配,營造恬靜放松的助眠氛圍。 睡眠區與衣帽收納區的隔斷,利用原木雙面柜代替了原本的墻體,圓弧的處理讓視線過渡流暢自然。 No.6 兒童房 兒臥設計上,我們希望既能塑造出獨立自主的一面,又能搭建起足夠的趣味感。 背景墻以白灰色塊的組合豐盈了層次,傳遞時尚的活力。孩子的學習書桌椅放在床側,日常學習休閑兩不誤。























下一篇:去風格化客廳,沒有邊界感才更自由
免費
免費申請戶型規劃
專屬設計師免費1對1全程服務
已經有3757人申請
24小時免費咨詢電話
400-8800-618
你家預算
108080元