
新作 | 時光蕩漾,泛起瓦爾登湖的漣漪
本期要為大家分享一套127方鄉村田園風的案例。
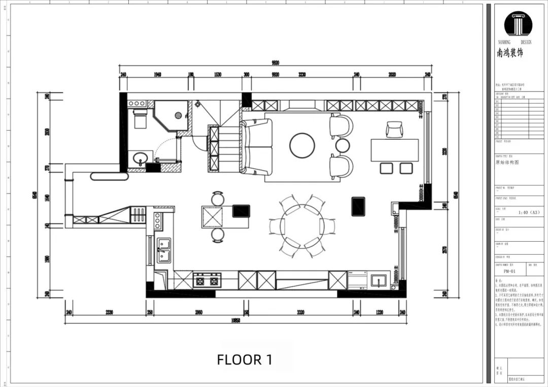
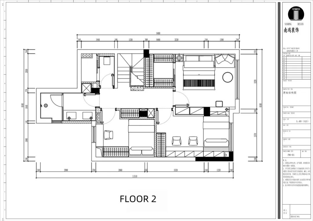
案例靈感,源于一對年輕夫妻對"鄉間生活"的向往和追尋。 為此,設計師摒棄了所有繁雜的設計符號,以天然原木做空間底色,融入恰到好處的裝飾品,讓素樸與精致達成一種微妙的平衡,使居室既不缺長久生活的儀式感,又有了業主所需的悠閑田園氛圍。 ▲平面方案 入戶門廳的地面做了綠色大理石的水刀拼花工藝,天然石材的流動紋理通過精密切割、組合,塑造了極富張力的藝術構圖。 拱形半門洞設計,以柔和曲線形態完成玄關到室內的過渡,進一步強化了室內外轉換的儀式感。 居室以溫馨的原木色佐配白色,構建出明亮的田園基底,烘托愜意悠閑的度假感。 客廳包容了主人的辦公區,并通過整墻書柜與壁爐的搭配,實現閱讀、休閑、社交等多重功能,視線在橫向維度上同步得到延展。 原木書柜墻與石砌壁爐的材質碰撞,將功能與美學巧妙融合。跳動的爐火為空間持續注入暖意,主人可在此沉浸閱讀、高效辦公,也能圍爐會客、自在交談,在獨處與社交狀態之間尋覓到最舒適的平衡點。 黑胡桃木圓桌以沉穩而優雅的質感錨定餐廳基調,同時搭配藤編、油蠟皮、羊羔絨等混搭的餐椅,在材質碰撞間勾勒出視覺層次。 開放式餐廚區以承重柱為軸心展開了設計,延伸出的島臺既化解了結構限制,又巧妙拓展出備餐區、早餐吧等實用功能。不加阻隔的聯通布局讓自然光在空間內自由流動,親友共聚時,烹飪、用餐與聲聲談笑皆成一體。 二樓規劃為休憩靜區,低飽和度著色讓臥室自帶柔光濾鏡。墻面選用淡淡的香芋紫色,搭配簡潔硬包背景墻的豎向線條,視覺上悄然拔高空間。 衛浴空間作為家里高頻使用的場景,業主對改造細節也尤為重視。 我們采用墻地一體的大板瓷磚鋪貼,以美麗石材紋理為視覺表現重心,既放大了空間感,又通過連貫的肌理呈現出精致調性。雙鏡雙臺盆極大提升洗漱效率,墻排系統消除衛生死角,幫助維持空間的整潔清爽。 P.I. 項目信息 項目名稱:桃源小鎮 設計風格:現代美式鄉村 項目類型:躍層 項目地點:中國·杭州 項目面積:127㎡ 項目服務:設計·施工·硬裝·軟裝 全案設計 設計單位:浙江南鴻裝飾 施工單位:浙江南鴻裝飾












免費
免費申請戶型規劃
專屬設計師免費1對1全程服務
已經有3737人申請
24小時免費咨詢電話
400-8800-618
你家預算
108080元