
滾蛋吧,家務——家務動線搞起!
打工苦,打工累,打工完了還要回家做家務,苦啊~

被家務支配了身體和靈魂的恐懼有那么大,優化家務動線,減輕家務壓力迫在眉睫!
家務動線:做家務時走的路線;動線越長,路徑越長,勞動越累。而在我們家里,日常做的最多的家務就是:洗衣、做飯、掃地;動線做不對,天天都好累。

那么“家務動線”怎么樣才算設計的合理呢?做家務本身就很繁瑣,所以我們在規劃動線時,一定要注意順序的合理安排,設計要盡量簡潔,否則會讓家務勞動的過程變得更辛苦。
1、洗衣動線
在日常生活中,我們的洗衣路徑是:拿衣服→洗衣服→曬衣服;經過的空間也就是:衛生間→洗衣機→陽臺。

洗衣機和陽臺的位置是固定的,所以縮短洗衣動線的關鍵,就在于洗衣機放在哪里。
①洗衣機位置擺放


洗衣機放廚房,動線肯定會加長。還是建議將洗衣機放在衛生間與陽臺的任意一個地方,都可以縮短洗衣路線。
放陽臺:洗完衣服直接可以晾衣服,動線減短。

放衛生間:

②用烘干機

雖然衛生間陽臺的位置改不了,但是選擇用烘干機了,則減去曬衣服這一步,家務動線自然變短啦。
2、廚房動線

衣服一天洗一次,地可以兩天掃一次,而飯,一天要做3次;廚房可以說是我們家中,家務最繁重的地方了。

所以廚房的動線,才是重中之重;減短廚房動線,我們先要了解我們的活動順序 ↓↓↓

我們在廚房活動順序:從冰箱拿菜→擇菜洗菜→切菜→炒菜→裝菜。所以我們的廚房動線布局:操作臺→水槽→操作臺→灶臺→裝盤臺。

當然,廚房有大小,所以廚房的設計也會有所不同。落實到實際中,應該是 ↓↓↓
①“一”型廚房

一字型的廚房,適合廚房不大的戶型使用,操作臺負責備餐、切菜、裝餐等等工作;這樣設計,動線最短。

②“L”型廚房

L型的廚房比一字型多了個拐角,建議以燃氣灶為中心,三角展開,動線最短。

③U型廚房

U型廚房布局方面是完全可以滿足:操作臺→水槽→操作臺→灶臺→裝盤臺的日常操作,不僅實用還能裝。

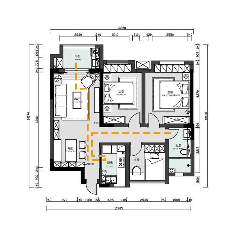
當然,考慮到上菜的路徑,餐廳的位置不能離廚房太遠,像下圖這樣就很合適,做完的菜可以擺上桌惹~

3、打掃動線

可以通過空間的整合,減少一些無用小空間,來縮短打掃衛生的動線。
2
雙動線設計
除了縮短家務動線,我們也可以設計雙動線,減少繞路。

通過對非承重墻的改動,增加門體,如增加廚房門、衛生間門等。

上圖的衛生間,在公共區域與主臥內分別設計了一個門,雙進雙出,更加便捷。雙動線設計可能會涉及到敲墻,所以要跟設計師好好溝通哦~
免費
免費申請戶型規劃
專屬設計師免費1對1全程服務
已經有3781人申請
24小時免費咨詢電話
400-8800-618
你家預算
108080元