
122方現代風三居室,這空間感真真是極好!

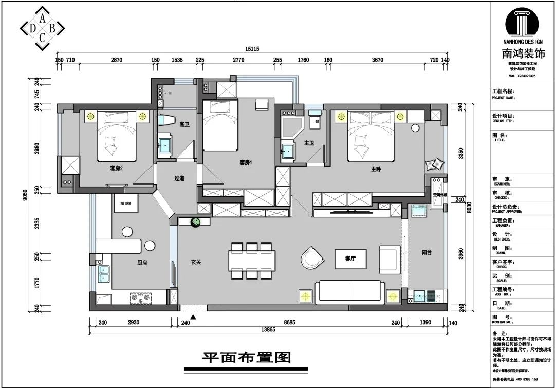
項目信息 / 地址:金茂悅 城市:中國 杭州 戶型:三室兩廳 面積:122㎡ 風格:現代風格 設計施工:浙江南鴻裝飾 本案常住一家三口,也是要給業主孩子未來做婚房使用。 明凈又自由的空間,舒適、宜居是居住者最核心的訴求。大量帶有天然紋理的石材和皮藝面料帶來簡奢的美,淺多深少的色彩構建層次,營造舒適愜意的空間氛圍,結構打造則以硬朗的線條為主,進一步增強居室敞亮的空間感。 #戶型設計 玄關 Hallway 玄關增加進深,正對入戶門的位置,我們用矮柜搭配花藝擺件來打造端景,鮮妍的紅寓意生活的美好。 客廳 Living Room 筆直的線條描摹出整個家沉穩又有氣度的個性,設計以易顯貴氣的石材與皮革面料,配合著自然光與頂面無主燈設計,為空間塑造寬闊、明朗和自由的面貌。 暖色沙發是這個灰度空間中的視覺吸睛點,淺淺增加了溫馨的格調。軟裝做簡約布置,體量適中,貼合居住者的生活習慣。 餐廳 Dining Room 餐廳與客廳連通,由于背景隱形門的效果,兩塊區域看起來更加完整和統一。 餐廳寬敞的格局能輕松容納多人就餐,簡潔流暢的線條打造純粹內斂的高級質感,餐邊柜則以原木打造并內嵌燈帶,用以襯托溫暖的就餐氛圍。 廚房 Kitchen 原戶型的廚房比較小,屋主希望能改造得更寬敞一點。我們將廚房做了半開放式設計,并在中部砌出島臺,操作區因此變得更加富裕。淺色的基調使空間清爽明亮,洗-切-炒動線高效,讓主人能夠盡情享受烹飪帶來的樂趣。 臥室 Bedroom 家里的臥室走同樣的簡約路線,灰色的基調,黑白灰相間的床品,純色的天花板,明與暗、剛與柔和諧相融,勾勒安心入睡的場景。 衛生間 Bathroom 衛浴空間以素色為基調,干凈利落的高級,是關于生活品味最好的宣言。























免費
免費申請戶型規劃
專屬設計師免費1對1全程服務
已經有3757人申請
24小時免費咨詢電話
400-8800-618
你家預算
108080元